西安[切换]
  • 装修热线:18191004446
入驻巧装家

高品质互联网家装平台

老房研究院

老房装修文化艺术节中国老房装修标准指南

已为4057位业主提供老房装修服务

免费预约 开工即省30%
  • 您的称呼
  • 手机号码
  • 所在小区
预约热线:18191004446
为了你的利益及我们的口碑,你的隐私将被严格保密。
x 点击进入西安站>>
选择其他城市:

您的位置: 巧装家 > 设计案例 >

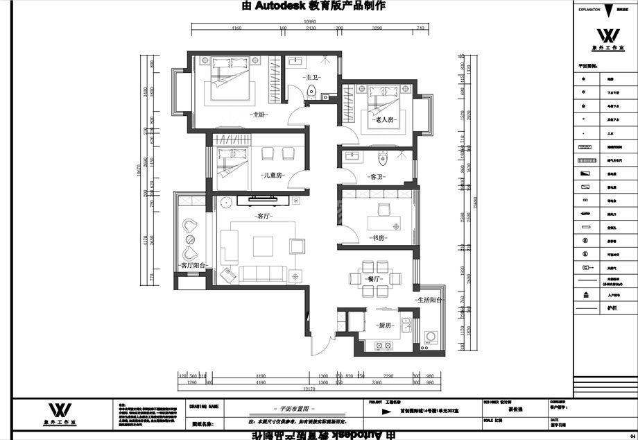
首创国际城150平方新中式风格设计方案

首创国际城150平方新中式风格设计方案

小区:
西安首创国际城/首创漫香郡
户型:
复式LOFT
面积:
150.0平米
风格:
中式
预算:
6.50万元
设计理念:
我们对于中式情怀的喜爱应该是渗透在骨子里的,也许是生活的周边处处都蕴藏着我们传统的精神文化内涵,随着时代的变化生活中与之相关的居住概念也发生了变化,今天我们分享的这个案子就是我们想表述的其中的变化之一,新中式:我们喜欢里面呈现的雅、静和不争的生活态度。
分享到:
蔡俊强

蔡俊强编号:UZ_816

级别:

他承诺:
  • 所接的工地均经过国家级的标杠工程施工,平台监理全程严苛监工,15项验收标准,不合格砸掉重做
  • 所接的工地均经过国家级的标杠工程施工,平台监理全程严苛监工,15项验收标准,不合格砸掉重做
  • 从环保设计,环保材料,环保施工,环保检测四个方面要求,承诺环保不达标全额退款
  • 业主提交投诉,30分钟内受理、24小时内上门确认、48小时内协调解决

陕西西安

从业9年 / 陕西西安人 / 西安建筑科技大学

  • 本月预约:0个
  • 成交记录 :31条
  • 作品数:127个
效果图 施工图
-首创国际城150平方新中式风格设计方案
-首创国际城150平方新中式风格设计方案
-首创国际城150平方新中式风格设计方案
-首创国际城150平方新中式风格设计方案
首创国际城150平方新中式风格设计方案

我家按此装修 需要多少钱呢

设计案例点评

加载更多