西安[切换]
  • 装修热线:18191004446
入驻巧装家

高品质互联网家装平台

老房研究院

老房装修文化艺术节中国老房装修标准指南

已为4057位业主提供老房装修服务

免费预约 开工即省30%
  • 您的称呼
  • 手机号码
  • 所在小区
预约热线:18191004446
为了你的利益及我们的口碑,你的隐私将被严格保密。
x 点击进入西安站>>
选择其他城市:

您的位置: 巧装家 > 设计案例 >

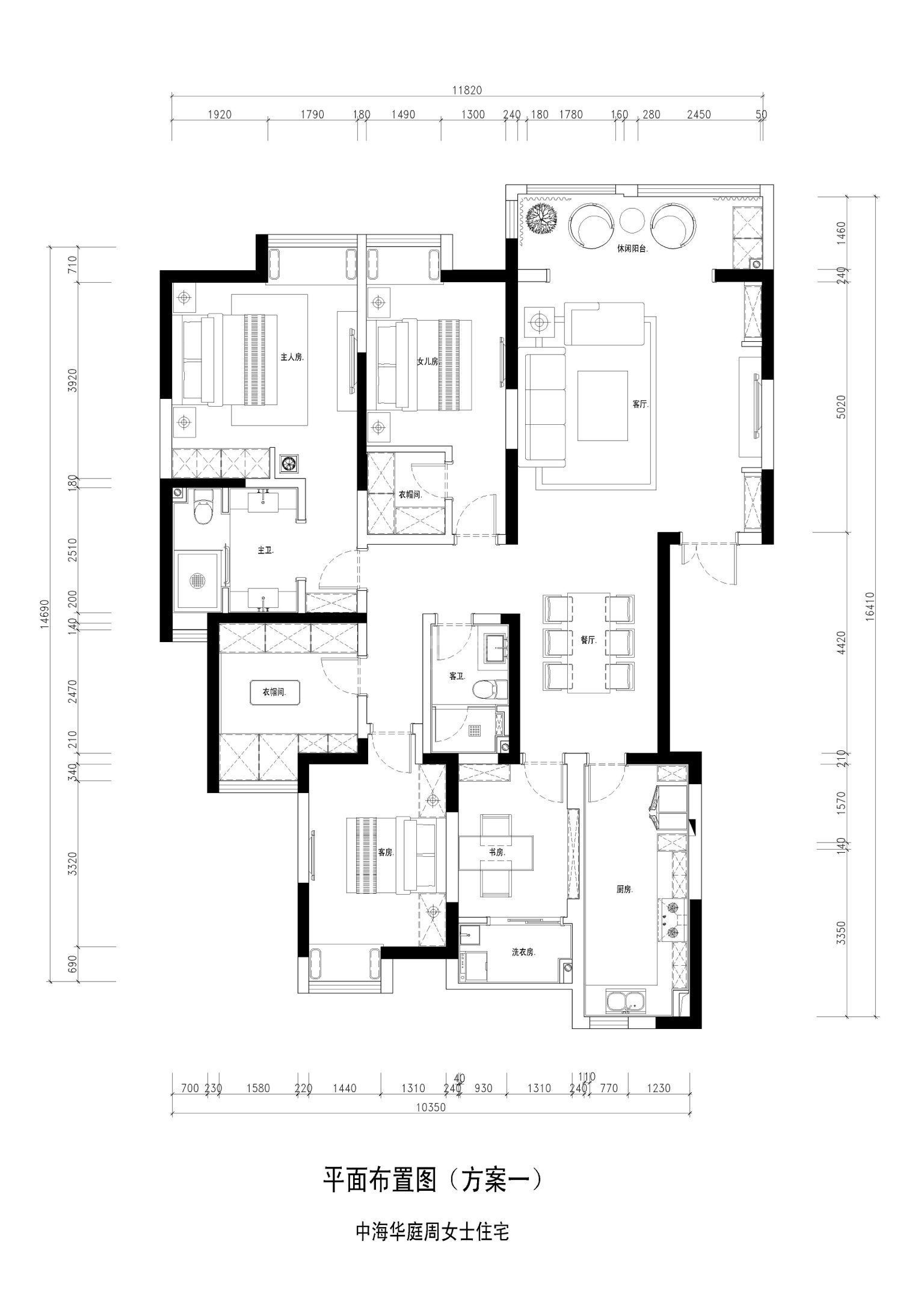
枫林绿洲180平欧式风格

枫林绿洲180平欧式风格

小区:
枫林绿洲
户型:
复式LOFT
面积:
180.0平米
风格:
欧式
预算:
12.00万元
设计理念:
客户是一个经常出差国外的中年女性,对于生活品质及生活环保要求很高,所以电视背景墙选用天然贝壳制作的马赛克,地面选用天然大理石,将原本的书房与厨房打通,使得厨房空间开阔,增加倒台,使得厨房充分显示了欧式风格的作用。同时增加了衣帽间,使得客户储物空间得以大大增加
分享到:
梁丽

梁丽编号:UZ_6255

级别:

他承诺:
  • 所接的工地均经过国家级的标杠工程施工,平台监理全程严苛监工,15项验收标准,不合格砸掉重做
  • 所接的工地均经过国家级的标杠工程施工,平台监理全程严苛监工,15项验收标准,不合格砸掉重做
  • 从环保设计,环保材料,环保施工,环保检测四个方面要求,承诺环保不达标全额退款
  • 业主提交投诉,30分钟内受理、24小时内上门确认、48小时内协调解决

陕西西安

从业8年 / 陕西西安人 / 西安外事学院

  • 本月预约:0个
  • 成交记录 :0条
  • 作品数:32个
效果图 施工图
电视背景-枫林绿洲180平欧式风格
沙发背景-枫林绿洲180平欧式风格
餐厅-枫林绿洲180平欧式风格
主卧-枫林绿洲180平欧式风格
次卧-枫林绿洲180平欧式风格
枫林绿洲180平欧式风格

施工图

我家按此装修 需要多少钱呢

设计案例点评

加载更多