西安[切换]
  • 装修热线:18191004446
入驻巧装家

高品质互联网家装平台

老房研究院

老房装修文化艺术节中国老房装修标准指南

已为4057位业主提供老房装修服务

免费预约 开工即省30%
  • 您的称呼
  • 手机号码
  • 所在小区
预约热线:18191004446
为了你的利益及我们的口碑,你的隐私将被严格保密。
x 点击进入西安站>>
选择其他城市:

您的位置: 巧装家 > 设计案例 >

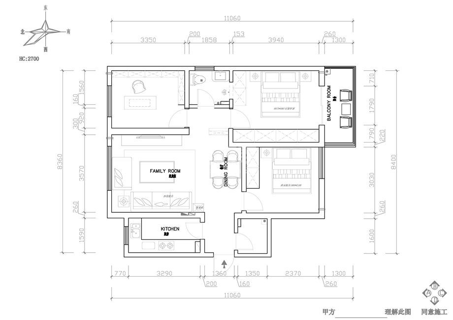
美寓华庭105平简约风格设计方案

美寓华庭105平简约风格设计方案

小区:
美寓华庭
户型:
复式LOFT
面积:
105.0平米
风格:
现代简约
预算:
3.30万元
设计理念:
倡导“回归自然”,在室内环境中力求表现悠闲、舒畅、自然的生活情趣,巧于设置室内绿化,创造自然、简朴、高雅的氛围。您的居室是以简洁明快的设计风格为主调,其经济适用又美观的特点是最适宜小户型的选择。充满色彩的空间与调色让您在出门时打起精神,劳累一天回到家倍感亲近与放松。
分享到:
罗仲卿

罗仲卿编号:UZ_813

级别:

他承诺:
  • 所接的工地均经过国家级的标杠工程施工,平台监理全程严苛监工,15项验收标准,不合格砸掉重做
  • 所接的工地均经过国家级的标杠工程施工,平台监理全程严苛监工,15项验收标准,不合格砸掉重做
  • 从环保设计,环保材料,环保施工,环保检测四个方面要求,承诺环保不达标全额退款
  • 业主提交投诉,30分钟内受理、24小时内上门确认、48小时内协调解决

湖北襄樊

从业11年 / 湖北襄樊人 / 湖北美术学院

  • 本月预约:210个
  • 成交记录 :47条
  • 作品数:195个
效果图 施工图
-美寓华庭105平简约风格设计方案
-美寓华庭105平简约风格设计方案
-美寓华庭105平简约风格设计方案
-美寓华庭105平简约风格设计方案
美寓华庭105平简约风格设计方案

我家按此装修 需要多少钱呢

设计案例点评

加载更多